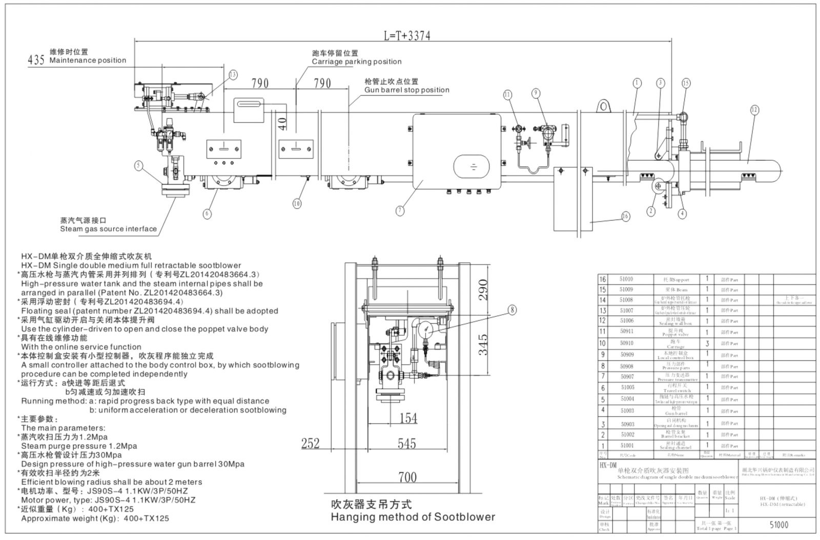
產品介紹
主要參數
1、介質(1)蒸汽吹掃:
根據需要選擇吹掃方式:a、快進步退式、步距25毫米b、勻減速或勻加速
介質(2)高壓水吹掃:設計壓力30Mpa,泵流量20T/h
根據需要選擇吹掃方式:a、快進步退式、步距10毫米b、勻減速或勻加速
2、電機功率、型號:JS90S-41.1KW/3P/50HZ
3、近似體重:360+TX120
HX-DM 單槍雙介質吹灰器

吹灰器物聯網+遠程控制+專家管理
波紋爐膽+螺紋煙管提高傳熱效率,
節能器和冷凝器降低排煙溫度
先進的控制系統可實現無人值守
采用低氮燃燒器及先進低氮燃燒技術,
NOx排放≤30mg/Nm3
華興吹灰器咨詢熱線
0724-7223090我們將盡快與您取得聯系(嚴格保護您的信息不會泄漏,請放心填寫)

湖北華興機械科技股份有限公司